Location de bureau de 859 m² à Paris 7 - 75007 Réf : 176411-0L

Photos
Visiter le Quartier
Plans
Carte
859 m²
/ m²/an
/ mois
/ an
646 €
Email
Téléphone
Cushman & Wakefield Paris
Cushman & Wakefield Paris
Mentions sur la protection de données personnelles
loader Location de bureau de 859 m² à Paris 7 - 75007
Contacter Victor De Lacvivier par téléphone pour la REF 176411-0L au : 0153769172

Description du bien

Belle surface à louer - 75007
Bâtiment indépendant avec loge de gardien et son logement ainsi que l'accès aux parkings en sous-sol desservis par monte-voiture
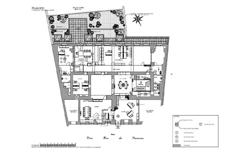
Surface de bureaux de 859m2 d'un hôtel particulier sur deux étages à louer, Paris 75007 : 41-43 Rue de Varenne.

Les bureaux sont climatisés et disposent de plusieurs parkings.

Les locaux offrent un accès à une terrasse dallée de 175m2 ainsi qu'un jardin privatif de 192m2.

Situés en plein coeur du 7ème arrondissement de Paris entre les boulevards Raspail et des Invalides, la desserte par les transports en commun est un atout supplémentaire ; la station de métro « Rue du Bac » à 200 m ou encore « Sèvres Babylone » à 500 m.

Emplacement recherché pour des bureaux dans une rue accueillant de nombreux hôtels particuliers. Elle est renommée par la présence de plusieurs ministères (1er ministre, Agriculture, Communication, Fonction Publique) ainsi que le Musée Rodin.

Accessibilité:

Métro Sèvres-Babylone (ligne 10) - Rue du Bac (ligne 12)
RER Musée-d'Orsay (RER C)
Bus Lignes 63-68-69-83-84-87-94
 
ÉtageTypeSurfacesDispoLoyerChargesType de bail
Rév. annuelle
SSArch./Reser.193-6-9 ans
Indexation sur l'indice ILAT
0Bureaux426646 HT/HC/m²/an78 HT/m²/an6-9 ans
Indexation sur l'indice ILAT
RdCBureaux433646 HT/HC/m²/an78 HT/m²/an6-9 ans
Indexation sur l'indice ILAT
-2Parkings3-6-9 ans
Indexation sur l'indice ILAT


Régime Fiscal : T.V.A.
Dépôt de garantie : 3 mois de loyer HT/HC
Paiement Loyer : trimestriel
Honoraires : à la charge du preneur

Information sur le Bail :

Les parkings sont inclus dans le loyer Provision annuelle pour charges : 67 000 euros/HT (y compris taxe et taxe bureaux)


Prestations :


  • Hôtel particulier de très bon standing desservi par une cour pavée
  • Construction ancienne avec façades en pierre de taille
  • Bureaux en très bon état
  • RDC : Accès indépendant depuis la cour, avec SAS vitré, bureaux éclairés sur cour et bureaux ouvrant sur une terrasse dallée de 175 m² comptant 5 skydômes et sur un jardin accessible depuis le sous-sol
  • RDJ : Bureaux situés sous la terrasse, éclairés par skydômes et par fenêtres sur un jardin arboré privatif de 192 m², salle de conférences, salle de repos avec cuisine, salle d'archives de 19 m²
  • Parquet massif
  • Plafonds de style industriel et faux plafond
  • Cloisonnement amovible avec double vitrage toute hauteur
  • Climatisation + câblage informatique
  • 15 parkings sont situés au R-2 via par monte-voiture.
  • Surface RDC : 859 m²



Les informations sur les risques auxquels ce bien est exposé sont disponibles sur le site Géorisques : www.georisques.gouv.fr
15 Parking(s) intérieur(s)
Bâtiment économe 0
kWhEP/m²/an
Bâtiment énergivore
Faible émission de GES 0
kgeqCO2/m²/an
Forte émission de GES
Afficher les consommations énergétiques

Transports en commun autour du bien

Signaler cette annonce
Conseil en immobilier d'entreprise, Cushman & Wakefield est un acteur incontournable au rayonnement international. Cushman & Wakefield offre des solutions dans toutes les étapes que comporte un projet immobilier, aussi bien pour la gestion que la commercialisation aux propriétaires, investisseu ...En savoir plus sur Cushman & Wakefield Paris à Neuilly-sur-Seine

Vous pourriez être également intéressé par ces annonces : Location de bureau de 859 m² à Paris 7 - 75007

  • Location Bureau Paris 7 (75007)

    Location bureaux Paris 7, Boulevard des Invalides, proche métro Duroc

    5 700€/mois 120 m²

    • Haussmannien
    • Stockage
  • Location Bureau Paris 7 (75007)

    Location bureau Paris 7 (75007) - 77 m²

    3 190€/mois 77 m²

    • Haussmannien
    • Parking
    • Climatisé
  • Location Bureau Paris 7 (75007)

    Location bureaux Paris 7 - Proximité métros Sèvres-Lecourbe et Duroc

    2 062€/mois 45 à 147 m²

    • Neuf
  • Location Bureau Paris 7 (75007)

    Location de bureaux Paris 7 dans un quartier prisé du centre

    8 348€/mois 189 m²

    • Accès PMR
    • RDC
Call us Par téléphone Appelez l'annonceur
Call us Par mail Remplissez le formulaire