Bureau à vendre de 280 m² à Tresses - 33370 Réf : 885028-0

Photos
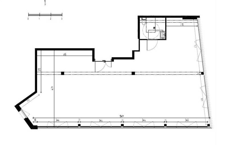
Plans
280 m² divisibles à partir de 138m²
total
/ m²
531 316 €
Email
Téléphone
RCG Bordeaux
RCG Bordeaux
  • 5 / 5
Mentions sur la protection de données personnelles
loader Bureau à vendre de 280 m² à Tresses - 33370
Contacter RCG Bordeaux par téléphone pour la REF 885028-0 au : 0533063435

Description du bien

A VENDRE A LOUER - DERNIERS LOTS - BUREAUX279 M² DIVISIBLES - TRESSES PARC TERTIAIRE FENELON
Immeuble LE SALIGNAC
Secteur Rive Droite sur la commune de Tresses, à 10 minutes de Bordeaux Bastide, Parc Tertiaire Le Fénelon, au carrefour de l'ensemble des dessertes autoroutières, sortie N°24 de la rocade, à 5 min en voiture de la ligne A du Tramway et de la ligne bus N°45.

Au sein d'un immeuble neuf avec ascenseur, RCG vous propose à la vente ou à la location, 2 surfaces de bureaux en open space à partir de 138 m².

3 parkings par lot - en sus du prix de vente.
+ 3 parkings supplémentaires disponibles.

Accessibilité:

Proximité zone commerciale Carrefour Lormont- Auchan Bouilliac- Lidl Aldi Latresne ITM artigues et Simply Market Artigues
 
ÉtageTypeSurfacesDispoPrix(m²)ChargesHonorairesFiscal
1Bureaux141,36Immédiate1900 HT/m²11 m²/an HT5%HT du prix de vente HT à la charge de l'acquéreurTVA
1Bureaux138,28Immédiate1900 HT/m²11 m²/an HT5%HT du prix de vente HT à la charge de l'acquéreurTVA


Impôt Foncier : 7,96 €/m²/an
Régime Fiscal : TVA
Dépôt de garantie : 3 mois de loyer HT/ HC
Honoraires : 5%HT du prix de vente HT à la charge de l'acquéreur

Information sur le Bail :

En cas de location, quote-part de parties communes à ajouter : lot 1 : 121,13 m² - lot 5 : 148,12 m² - lot 6 : 144,90 m² Loyer parkings : standard 420 eurosHT/U/AN soit 35 euros HT/U/mois électrifiable : 540 eurosHT/U/AN soit 45 euros HT/U/mois


Prestations :


  • Immeuble neuf RT 2012
  • Accès PMR / ascenseur
  • Plateaux livrés nus en open space :
  • Climatisation réversible / VMC (gaines générales avec vannes d'attente individuelles à l'entrée de chaque lot)
  • Courants forts (goulotte avec courant fort 220V, 1 PC/15 m²)
  • Courants faibles (goulotte vide)
  • Revêtement sol souple dans les bureaux et parties communes / carrelage dans les sanitaires
  • 1 WC PMR + lave-mains par lot
  • A la charge de l'acquéreur : faux plafonds, cloisonnement, courants faibles, éclairages, BAES, circuit secondaire climatisation / VMC, menuiseries intérieures (portes de distribution)
  • Lot 1 livré fini (faux plafonds, cassettes de climatisation et éclairage)
  • Stationnement : 3 emplacements /lot (2 standards + 1 électrifiable) en sus du prix
  • + 3 emplacements supplémentaires disponibles à la demande



Les informations sur les risques auxquels ce bien est exposé sont disponibles sur le site Géorisques : www.georisques.gouv.fr
Bâtiment économe 0
kWhEP/m²/an
Bâtiment énergivore
Faible émission de GES 0
kgeqCO2/m²/an
Forte émission de GES
Afficher les consommations énergétiques

Transports en commun autour du bien

Signaler cette annonce
RCG Bordeaux est un cabinet de conseil en immobilier d'entreprise est située au cœur du quartier des Chartrons au 107 cours Balguerie Stuttenberg à Bordeaux. Cette agence propose un large choix de bureaux, commerces, locaux d’activités, entrepôts/logistique et terrains dans toute la Gironde et en ...En savoir plus sur RCG Bordeaux à Bordeaux

Vous pourriez être également intéressé par ces annonces : Bureau à vendre de 280 m² à Tresses - 33370

  • Vente Bureau Tresses (33370)

    Vente bureaux Tresses - Proche rocade sortie 24

    262 733 145 m²

    • Neuf
    • Parking
    • Climatisé
  • Vente Bureau Tresses (33370) Visite 3D

    Vente bureaux Tresses - Proche Rocade, gare Saint-Jean et aéroport Bordeaux Mérignac

    262 732 138 m²

    • Accès PMR
    • Certif environnementale
    • Neuf
    • Parking
    • Climatisé
  • Vente Bureau Tresses (33370)

    Vente bureaux Tresses - Proche Rocade sortie 24, A10, A630, A63, A62, A89, N230, Tram A, Bus 73

    841 000 116 à 395 m²

    • Accès PMR
    • Certif environnementale
    • Neuf
    • RDC
    • Parking
    • Climatisé
  • Vente Bureau Tresses (33370)

    Vente bureaux Tresses - Proximité A10 et A63

    531 330 145 à 293 m²

    • Neuf
    • Parking
Call us Par téléphone Appelez l'annonceur
Call us Par mail Remplissez le formulaire