Entrepôt à vendre de 2 016 m² à Crémieu - 38460 Réf : 177488-0

Photos
Visiter le Quartier
Plans
Carte
2 016 m²
total
/ m²
1 570 920 €
Email
Téléphone
Cushman & Wakefield Lyon
Cushman & Wakefield Lyon
Mentions sur la protection de données personnelles
loader Entrepôt à vendre de 2 016 m² à Crémieu - 38460
Contacter Adrien Font par téléphone pour la REF 177488-0 au : 0437247423

Description du bien


Nous vous proposons à la vente un bâtiment industriel, sur la commune de Crémieu (38460).
Location possible.
Possibilité de stockage extérieur et aire de retournement poids lourds.
Ce local d'activité dispose d'accès de plain-pied et quais déchargement.

Accessibilité:

Accès routier Accès direct Départementale D75 & D517 Accès Autoroute A432 Raccordement A43
SNCF Gare TER la Verpillière à 20 min environ
Aéroport Aéroport et gare TGV Lyon Saint Exupéry à 22 min. environ (20 km)
 
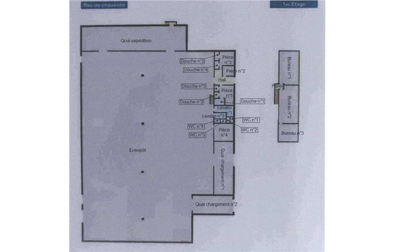
ÉtageTypeSurfacesDispoPrix(m²)ChargesHonorairesFiscal
RdCActivités1802n.c.n.c.2,5 % HT du prix de vente HD à la charge de l'acquéreurDroits d'enregistrement
RdCLocaux sociaux102n.c.n.c.2,5 % HT du prix de vente HD à la charge de l'acquéreurDroits d'enregistrement
R+1Bureaux112n.c.n.c.2,5 % HT du prix de vente HD à la charge de l'acquéreurDroits d'enregistrement
Total CelluleActivités2016Immédiaten.c.n.c.2,5 % HT du prix de vente HD à la charge de l'acquéreurDroits d'enregistrement


Impôt Foncier : 10000 €//an
Régime Fiscal : Droits d'enregistrement
Dépôt de garantie : 3 mois de loyer HT/HC
Paiement Loyer : trimestriel
Honoraires : 2,5 % HT du prix de vente HD à la charge de l'acquéreur

Information sur le Bail :

Nous consulter


Prestations :


  • Nombreux parkings extérieurs
  • Aire de retournement
  • 1 quai de déchargement
  • 2 accès PL de PP
  • 3 quais VL
  • Murs en bardage métallique double peau
  • Toiture bac acier isolée
  • Chauffage gaz
  • Sol dalle béton
  • 5,5 m de hauteur au plus bas
  • Eclairage néon
  • Douches et vestiaires
  • Tarif bleu
  • Surface RDC : 1904 m²



Les informations sur les risques auxquels ce bien est exposé sont disponibles sur le site Géorisques : www.georisques.gouv.fr
Bâtiment économe 0
kWhEP/m²/an
Bâtiment énergivore
Faible émission de GES 0
kgeqCO2/m²/an
Forte émission de GES
Afficher les consommations énergétiques

Transports en commun autour du bien

Signaler cette annonce
Conseil en immobilier d'entreprise, Cushman & Wakefield est un acteur incontournable au rayonnement international. Cushman & Wakefield offre des solutions dans toutes les étapes que comporte un projet immobilier, aussi bien pour la gestion que la commercialisation aux propriétaires, investisseu ...En savoir plus sur Cushman & Wakefield Lyon à Lyon 6

Vous pourriez être également intéressé par ces annonces : Entrepôt à vendre de 2 016 m² à Crémieu - 38460

  • Vente Entrepôt Crémieu (38460)

    Cellules d'activité à vendre Crémieu - Village des entreprises

    165 856 146 à 3 592 m²

    • Accès Plain-pied
    • Parking
  • Vente Entrepôt Crémieu (38460)

    Activité/Entrepôt à vendre Crémieu (38460) - 1055 m²

    474 750 1 055 m²

  • Vente Entrepôt Crémieu (38460)

    Local d'activités à vendre Crémieu - Proche A432

    1 300 000 2 014 m²

    • Avec Bureaux
    • Quai de déchargement
    • Porte Sectionnelle
    • Accès Plain-pied
    • Double peau
  • Vente Entrepôt Crémieu (38460)

    Local d'activité à vendre Crémieu - ZA de Crémieu

    3 081 350 268 à 2 765 m²

    • Porte Sectionnelle
    • Parking
Call us Par téléphone Appelez l'annonceur
Call us Par mail Remplissez le formulaire